Neubau Kinderkrippe Harthauserstrasse Mühldorf a. Inn
Neubau Kinderkrippe Harthauserstrasse Mühldorf a. Inn
Errichtung einer Kinderkrippe im Anschluss einer neuen Siedlungsstruktur im Mühldorfer Norden.
Die neue Kinderkrippe ist der erste von zwei Bauabschnitten eines gemeinsamen Kinderkrippen und -gartenbereichs mit insgesamt 11 Gruppen, welcher in ökologischer und nachhaltiger Holzbauweise errichtet wurde.
Die kompakte und klare Baustruktur grenzt östlich an die öffentlichen Bauten des Schul- und Sportzentrums an. Zur kleinteiligen Struktur der neuen Wohnbebauung trennt sich die Bebauung durch einen sanften Grünzug ab und fügt sich so angenehm in die Umgebung ein.
Die klare Gebäudeform mit einer Fassade aus Lärchenholz und einem großem – nach Errichtung des zweiten Bauabschnitts - gemeinsamen Zugangsbereichs, strahlt eine Zurückhaltung aus und will den Kindern Raum zur individuellen Entwicklung geben. Die Fassade untergliedert die Geschosse horizontal in Bänder und streckt den Baukörper damit Elegant in die Länge
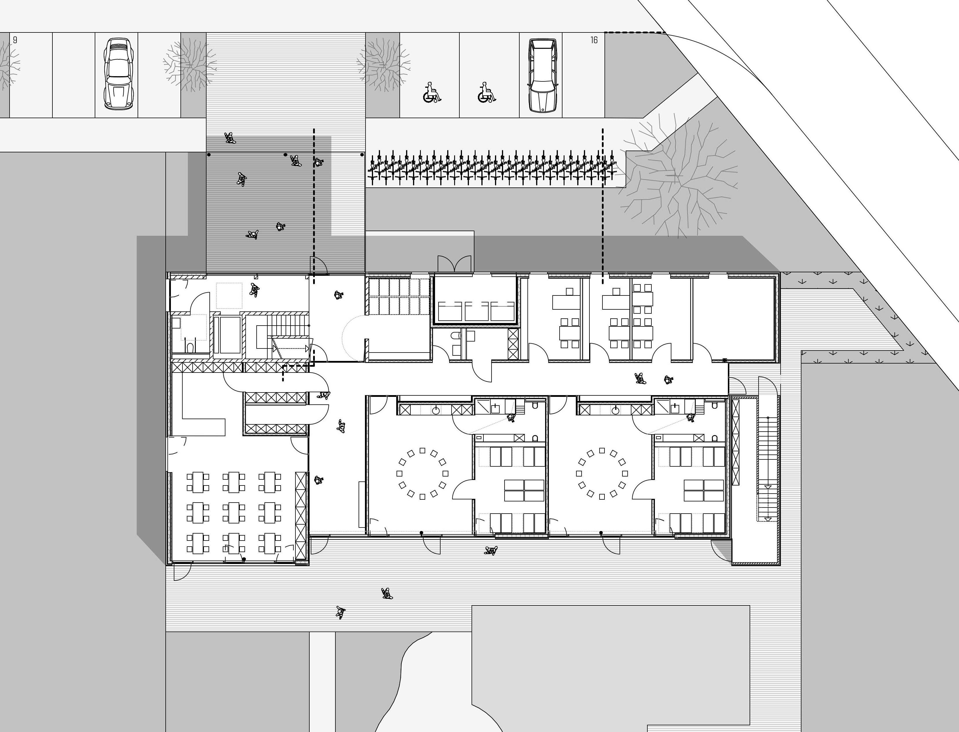
Betreten wird die Kinderkrippe über einen gemeinsamen großzügigen rollstuhlgerechten Zugangsbereich mit Treppenhaus.
Die anschließenden Räumlichkeiten sind klar Strukturiert und intuitiv auffindbar. Die hellen und transparenten Innenräume sind mit individuell geplanten Möbel ausgestattet und erhalten eine geschossweise farblicher Leitstruktur. Im Innenraum kommen ausschließlich nachhaltige und langlebige Materialien zur Ausführung. Die tiefen Balkone auf der Süd- und Ostseite dienen neben der Funktion als Rettungsweg auch der Beschattung der Innenräume.
















